+420 774 080 124

Detail domu

Rodinný dům 04 A Volný

Moderně architektonicky řešený dvoupatrový zděný dům  s dispozicí 4+kk, vlastní volbou vnitřního vybavení a zahradou.

Dům je vybaven tepelným čerpadlem a kompletními datovými rozvody. Ve standardu lze vybírat z pestré nabídky obkladů, dlažeb, dveří a podlahových krytin.

Samozřejmostí je i zpevněná plocha pro parkování automobilů.

Dispozice
5+kk
Celková plocha domu
156 m²
Podlahová plocha domu
126,2 m²
Plocha pozemku
413 m²
Cena
9.990.000 Kč

Kontaktujte nás


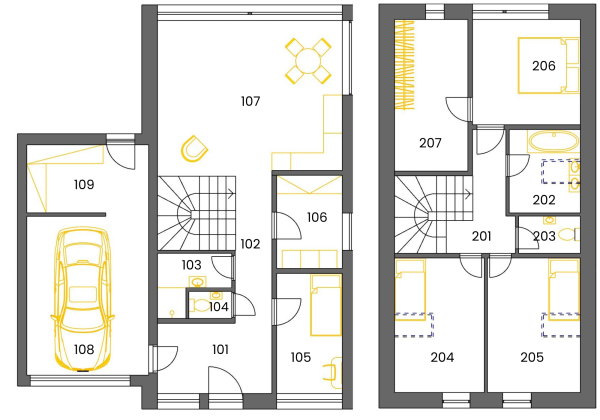
Půdorys Rodinný dům 04 A

1.NP

101 zádveří
9,1 m²
102 chodba
5,8 m²
103 koupelna
3,5 m²
104 wc
1,30 m²
105 pracovna
8,6 m²
106 technická místnost
5,3 m²
107 obývací pokoj + kk
30,7 m²
108 garáž
20,4 m²
109 sklad
8,7 m²

2.NP

201 chodba
5 m²
202 koupelna
5,8 m²
203 wc
1,8 m²
204 pokoj
12,9 m²
205 pokoj
12,4 m²
206 ložnice
12,2 m²
207 šatna
11,5 m²
Letecký pohled
Obývací pokoj Kuchyně
Ložnice
Pracovna Koupelna
Pohled na zahrady
Zahrada Ulice